About this project
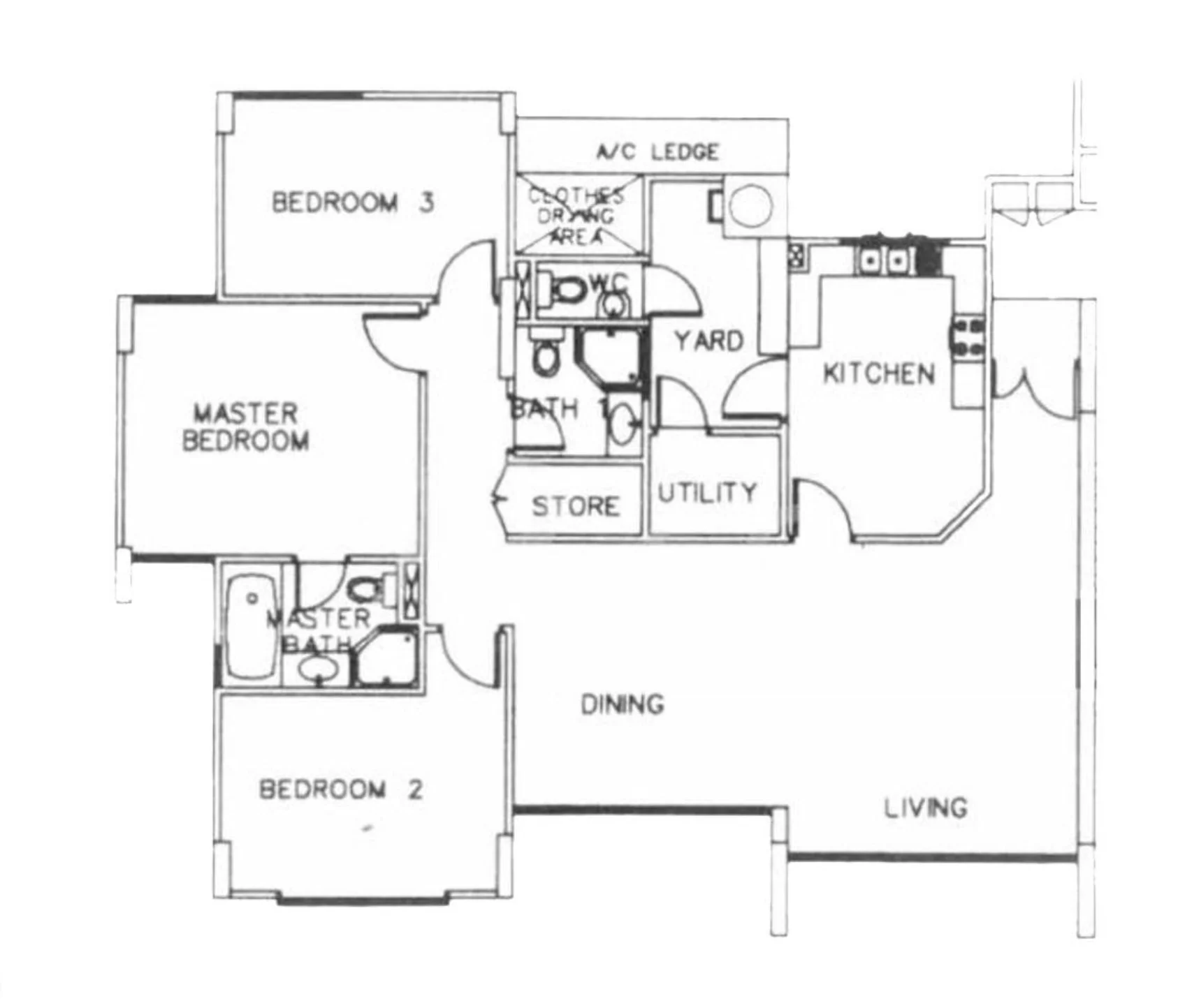
Completed in 2021, this contemporary renovation project covered a 120m² residential space. The scope focused on refreshing the interior through targeted upgrades, combining functional carpentry works with carefully selected finishes to enhance the overall look and usability of the home.
By coordinating multiple trades efficiently, the renovation was delivered smoothly with a clear focus on workmanship quality and cost control.










